

TOPICS★★さまざまな使い方が楽しめるコモンスペースを備えた、新しいスタイルの賃貸住宅★★
| 階 | 間取り | 賃料 | 専有面積 | 詳細 |
|---|---|---|---|---|
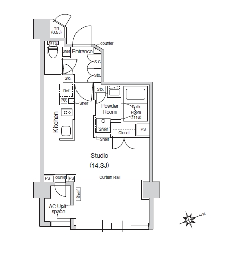
| 4階 | 1R | 14.9万円 | 34.98m² | 409室 詳細 |
| 物件名 | スタイリオ元住吉Ⅱ |
|---|---|
| 所在地 | 神奈川県川崎市中原区木月3丁目37-5 |
| 交通 |
東急東横線「元住吉」駅 徒歩7分 |
| 構造 |
鉄筋コンクリート造 地上6階建 |
| 賃貸総戸数 | 63戸 |
| 契約形態 | 定期建物賃貸借契約 |
| 契約期間 | 2年 |
| 住戸タイプ | 賃貸マンション |
| 賃料(月額) | 149,000円 |
| 管理費(月額) | 10,000円 |
| 敷金 | 1ヶ月 |
| 礼金 | - |
| 専有面積 | 34.98m² |
| 間取り | 1R |
| 主要採光面 | 南東 |
| 駐輪場 | 有り 23台 |
|---|---|
| 駐車場 | 無し |
| 駐車場使用料(月額) | - |
| 駐車場敷金 | - |
| バイク置き場 | 空有り |
| バイク置き場使用料(月額) | 3,300~6,600円(税込) |
| バイク置き場敷金 | 月額使用料の1か月分円(税込) |
| 竣工年月 | 2015年5月 |
| 入居可能日 | 応相談 |
| その他費用 | 【保険料】16,550円 2年 【初期費用】鍵交換代: 33,000円 【退去時費用】清掃費: 44,000円、エアコン清掃費: 11,000円 ※故意・過失による損耗毀損については別途請求対象となります。 【保証会社利用必須】 ・あんしんQ-Rent 保証料:賃料等の50%(最低2万)、月次保証料:賃料等の1% ・エポスカード(RP) 保証料:賃料等の50%(最低2万)、月額保証料:賃料等の1%(更新料無) ・オリコフォレントインシュア 保証料:賃料等の50%(最低2万)、月次保証料:賃料等の1%(更新料無) |
| 取引態様 | 仲介 東急リバブル株式会社:国土交通大臣(12)第2611号 〒150-0043 東京都渋谷区道玄坂1丁目9番5号 (仲介手数料・・賃料の1か月分別途消費税) ※物件のご契約等につきましては、東急リバブル㈱の担当者よりご連絡させていただきます。 東急リバブル㈱プライバシーポリシー(htpp//www.livable.co.jp/privacy_policy.html) |
| 備考 | ・ご入居にあたっては入居審査があります。 ・ご契約時に貸主指定の保険にご加入いただきます。 ・保証会社の保証または連帯保証人が必要となります。 ・図面と現況が異なる場合、現況を優先します。 ・駐車場、駐輪場など付随設備に関する費用・空き状況等は随時ご確認ください。 |
| 広告主 | 東急ライフィア株式会社 東京都世田谷区用賀四丁目10番1号 世田谷ビジネススクエアタワー14F 国土交通大臣(6)第5543号 TEL 03(5797)2121 |
情報更新日 | 2025年12月09日 | 次回情報更新予定日 | 2025年12月23日(予定) |
物件情報・周辺環境・契約手続きについてなど
お気軽にお問い合わせください。

受付時間/10:00~18:00 定休日/毎週 土曜日・日曜日・祝日